Get in Touch with FOX

    By submitting this form, you authorize, ‘FOX Smart Estate Agency’ to contact you and send you information on properties. In addition, you confirm that you agree to our website’s terms of use, our privacy policy and consent to cookies being stored on your computer.

    Contact Us

    Wishlist heart black
    email icon dark
    Phone icon black
    For Sale

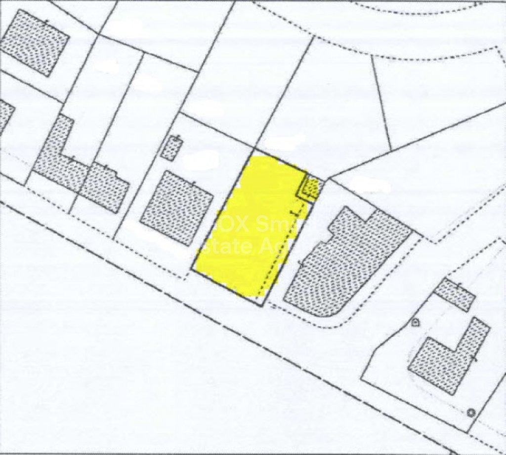
    Ref: 7681

    Land, For Sale, Nicosia, Aglantzia

    Nicosia, Aglantzia
    €500,000
    plot_area_amount 580m²
    building_density 0.50%
    town_planning_zone Commercial
    Plot Area
    580m²
    Building Density
    0.50%
    Town Planning Zone
    Commercial

    Description

    For corner commercial plot of 580sq.m situated at Larnacos Avenue, near Municipal Aglantzia swimming pool. It lies within EB4 urban zone with 140% building destiny and 50% coverage ratio, with allowance for 4 floors and 17 meters height. Πωλείται εμπορικό γωνιακό οικόπεδο 580τ.μ στην Λεωφόρο Λάρνακος, κοντά στο Δημοτικό Κολυμβητήριο Αγλαντζιάς. Εμπίπτει στη πολεοδομική ζώνη ΕΒ4 με 140% συντελεστή δόμησης, 50% ποσοστό κάλυψης, με δυνατότητα ανέγερσης 4 ορόφων και ύψος 17 μέτρα.

    Details

    Legacy ID: P-70872
    City: Aglantzia
    Land Type: Plot
    Town Planning Zone: Commercial
    Zone: EB4
    Building Coverage (%): 140.00%
    Building Density: 0.50%

    Areas

    Plot Area: 580m²

    Martha Mavrou
    Nicosia Georgiou Davari Office
    Land, For Sale, Nicosia, Aglantzia

      By submitting this form, you authorize, ‘FOX Smart Estate Agency’ to contact you and send you information on properties. In addition, you confirm that you agree to our website’s terms of use, our privacy policy and consent to cookies being stored on your computer.

      ARE YOU INTERESTED?

      Enquire about this property

      Complete the form or send an email to [email protected]
      Privacy Overview

      This website uses cookies so that we can provide you with the best user experience possible. Cookie information is stored in your browser and performs functions such as recognising you when you return to our website and helping our team to understand which sections of the website you find most interesting and useful.