For Sale
Ref: 47858
House, For Sale, Limassol, Germasogeia
Limassol, Germasogeia
€750,000+VAT
Bedrooms
3
Bathrooms
2
Internal Area
152m²
For Sale
Ref: 47858
House, For Sale, Limassol, Germasogeia
Germasogeia
€750,000+VAT

Griva Digeni Main Limassol Offices
Limassol Main Offices at Griva Digeni
Description
This contemporary residential development offers a refined approach to modern Mediterranean living, combining privacy, comfort, and high-quality construction with generous indoor and outdoor spaces and beautiful mountain views. Designed to meet the needs of today’s lifestyle, the residences focus on functionality, natural light, and long-term value. This is a contemporary residential project located in Germasogeia, one of Limassol’s most desirable and centrally positioned areas. Designed for comfort, privacy, and modern Mediterranean living, the project combines high-quality construction with stunning mountain views and spacious indoor and outdoor areas.
Germasogeia offers the perfect balance between city convenience and natural surroundings. Ideally positioned close to Limassol’s city centre, beaches, and major highway access, the area allows easy movement across the island, including quick access to both Paphos and Larnaca international airports.
Known for its quiet residential neighbourhoods, Germasogeia provides excellent access to schools, hospitals, shopping centres, and everyday amenities. Nearby mountain trails, parks, and the Germasogeia Dam enhance the area’s appeal, making it a popular choice for families, professionals, and property investors.
The Residences
Each residence features a well-designed layout with open-plan living spaces that maximise natural light through full-height, double-glazed windows. The homes include:
Spacious living, dining, and kitchen areas
Three comfortable bedrooms with built-in wardrobes
Elegant bathrooms with floor-to-ceiling finishes and premium ceramics
Large verandas, terraces, and outdoor entertainment areas
Living areas and bathrooms are finished with high-quality ceramic tiles, while bedrooms feature premium laminated wooden flooring for added warmth and comfort.
Apartment Specifications
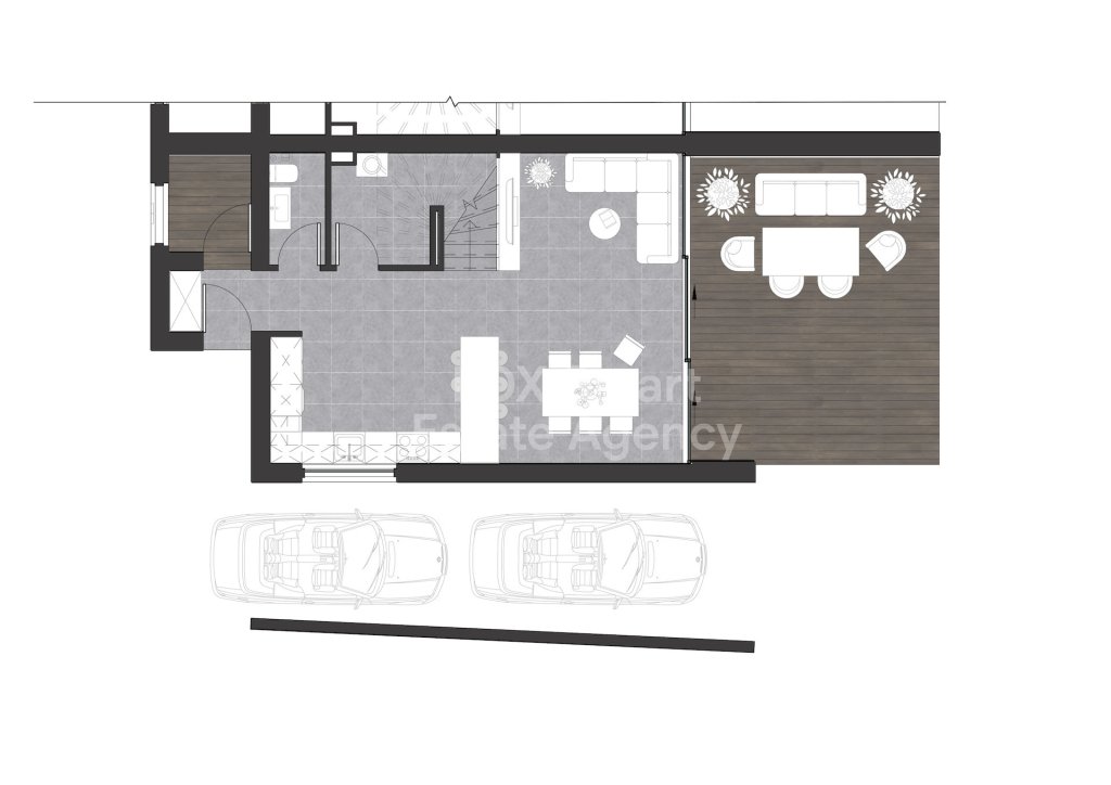
Ground floor
Living Areas – Total: 50.4 m²
Living room: 20.4 m²
Kitchen: 10.5 m²
Hallway: 7.5 m²
Laundry: 5.9 m²
Toilet: 2.3 m²
Veranda: 3.1 m²
First floor
Bedrooms & Bathrooms – Total: 64.8 m²
Master bedroom: 13.3 m²
Bedroom 1: 10.7 m²
Bedroom 2: 11.2 m²
Master bathroom: 5.0 m²
Bathroom: 5.0 m²
Wardrobe: 2.7 m²
Hallway: 3.2 m²
Terrace: 8.3 m²
Roof Top
Outdoor Areas – Total: 37.4 m²
BBQ area: 13.9 m²
Lounge area: 30.0 m²
Quality Construction & Energy Efficiency
Built in accordance with Eurocodes, the development uses reinforced concrete construction and is designed as a Grade A energy-efficient project.
Key features include:
Highly insulated walls and roof
Energy-efficient double-glazed windows
Solar panels and photovoltaic (PV) system
Split air-conditioning units in all areas
Pressurised water system with 1-tonne water tank
Lifestyle & Added Features
Residents benefit from a range of modern amenities designed to enhance everyday living:
Optional private 6x3m swimming pool
Rooftop BBQ and lounge area
Landscaped gardens
Two private parking spaces
Security entrance door and intercom system
Electric shutters, alarm provisions, and EV charging provision
Fully fitted kitchens with marble or solid surface worktops
A Smart Lifestyle & Investment Choice
Whether for permanent living, a holiday home, or a property investment in Limassol, this development offers an excellent opportunity in a high-demand location with strong rental and resale potential.
Short FAQ
Q: Where is the property located?
A: In Germasogeia, Limassol, a prime residential area close to the city centre, beaches, and major road connections.
Q: Is the development energy efficient?
A: Yes, it is a Grade A energy-efficient project with insulation, solar panels, and a photovoltaic system.
Q: Are private swimming pools available?
A: Yes, a private 6x3m swimming pool is available as an optional feature.
Q: Is the property suitable for families?
A: Absolutely. The area offers schools, hospitals, parks, and quiet residential surroundings.
Q: Does the property include parking?
A: Yes, each residence includes two private parking spaces.
Germasogeia offers the perfect balance between city convenience and natural surroundings. Ideally positioned close to Limassol’s city centre, beaches, and major highway access, the area allows easy movement across the island, including quick access to both Paphos and Larnaca international airports.
Known for its quiet residential neighbourhoods, Germasogeia provides excellent access to schools, hospitals, shopping centres, and everyday amenities. Nearby mountain trails, parks, and the Germasogeia Dam enhance the area’s appeal, making it a popular choice for families, professionals, and property investors.
The Residences
Each residence features a well-designed layout with open-plan living spaces that maximise natural light through full-height, double-glazed windows. The homes include:
Spacious living, dining, and kitchen areas
Three comfortable bedrooms with built-in wardrobes
Elegant bathrooms with floor-to-ceiling finishes and premium ceramics
Large verandas, terraces, and outdoor entertainment areas
Living areas and bathrooms are finished with high-quality ceramic tiles, while bedrooms feature premium laminated wooden flooring for added warmth and comfort.
Apartment Specifications
Ground floor
Living Areas – Total: 50.4 m²
Living room: 20.4 m²
Kitchen: 10.5 m²
Hallway: 7.5 m²
Laundry: 5.9 m²
Toilet: 2.3 m²
Veranda: 3.1 m²
First floor
Bedrooms & Bathrooms – Total: 64.8 m²
Master bedroom: 13.3 m²
Bedroom 1: 10.7 m²
Bedroom 2: 11.2 m²
Master bathroom: 5.0 m²
Bathroom: 5.0 m²
Wardrobe: 2.7 m²
Hallway: 3.2 m²
Terrace: 8.3 m²
Roof Top
Outdoor Areas – Total: 37.4 m²
BBQ area: 13.9 m²
Lounge area: 30.0 m²
Quality Construction & Energy Efficiency
Built in accordance with Eurocodes, the development uses reinforced concrete construction and is designed as a Grade A energy-efficient project.
Key features include:
Highly insulated walls and roof
Energy-efficient double-glazed windows
Solar panels and photovoltaic (PV) system
Split air-conditioning units in all areas
Pressurised water system with 1-tonne water tank
Lifestyle & Added Features
Residents benefit from a range of modern amenities designed to enhance everyday living:
Optional private 6x3m swimming pool
Rooftop BBQ and lounge area
Landscaped gardens
Two private parking spaces
Security entrance door and intercom system
Electric shutters, alarm provisions, and EV charging provision
Fully fitted kitchens with marble or solid surface worktops
A Smart Lifestyle & Investment Choice
Whether for permanent living, a holiday home, or a property investment in Limassol, this development offers an excellent opportunity in a high-demand location with strong rental and resale potential.
Short FAQ
Q: Where is the property located?
A: In Germasogeia, Limassol, a prime residential area close to the city centre, beaches, and major road connections.
Q: Is the development energy efficient?
A: Yes, it is a Grade A energy-efficient project with insulation, solar panels, and a photovoltaic system.
Q: Are private swimming pools available?
A: Yes, a private 6x3m swimming pool is available as an optional feature.
Q: Is the property suitable for families?
A: Absolutely. The area offers schools, hospitals, parks, and quiet residential surroundings.
Q: Does the property include parking?
A: Yes, each residence includes two private parking spaces.
Details
City:
Germasogeia
House Type:
Terraced House
Construction Stage:
Under Construction
Bedrooms:
3
Bathrooms:
2
WC Bathrooms:
3
Furnished:
Unfurnished
Kitchen Type:
Open Plan
Floor Type:
Laminate
Areas
Internal Area:
152m²
Covered Verandas:
3.10m²
Uncovered Verandas:
8.30m²
Plot Area:
216m²
Energy
Energy Efficiency Grade:
A
Main Features
Separate Laundry Room:
Storage Space:
Air Condition:
Mountain View:
Electrical Shutters:
Photovoltaic Panels:

Griva Digeni Main Limassol Offices
Limassol Main Offices at Griva Digeni
ARE YOU INTERESTED?
Enquire about this property
Complete the form or send an email to [email protected]