Get in Touch with FOX

    By submitting this form, you authorize, ‘FOX Smart Estate Agency’ to contact you and send you information on properties. In addition, you confirm that you agree to our website’s terms of use, our privacy policy and consent to cookies being stored on your computer.

    Contact Us

    Wishlist heart black
    email icon dark
    Phone icon black
    For Sale

    Ref: 37048

    Apartment, For Sale, Larnaca, New Hospital Area

    Larnaca, New Hospital Area
    €360,000+VAT
    bedroom_to_studio 3
    bathrooms 2
    internal_area_amount 108m²
    Bedrooms
    3
    Bathrooms
    2
    Internal Area
    108m²

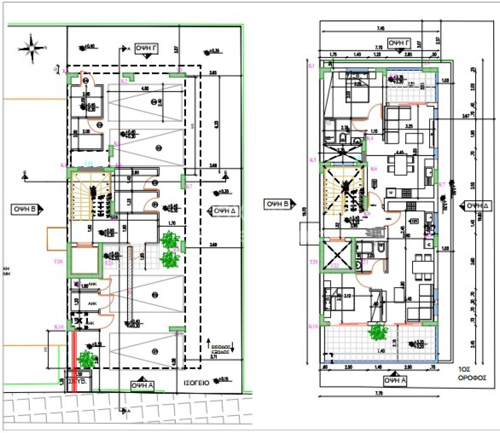
    3 Bedroom Under Construction, Top Whole Floor Apartment, With Roof Garden, in Larnaca, New Hospital Area

    Whole Floor, Top Floor, With Roof Garden 3 bedrooms apartment in New Hospital area, in Larnaca.

    Open plan kitchen with living / sitting area extended to the 22m² balcony. Utility area, main bathroom and 3 bedroom from which the main with en-suite.
    53m² Roof Garden

    With storage room and covered parking area.

    On a small building of just 4 apartments.

    In a quiet residential area near the New Hospital of Larnaca.

    Details

    City: New Hospital Area
    Apartment Type: Penthouse
    Construction Stage: Under Construction
    Floor Number: 3
    Bedrooms: 3
    Bathrooms: 2
    Furnished: Unfurnished
    Kitchen Type: Open Plan
    Covered Parking: 1
    No. Of Floors In building: 3
    Construction Year: 2025
    Estimated Year of Completion: 2025
    Completion Month: May

    Areas

    Internal Area: 108m²
    Covered Verandas: 22m²
    Roof Garden Area: 53m²

    Energy

    Cooling Type: Autonomous Cooling System
    Energy Efficiency Grade: A

    Main Features

    Secure Door:
    Separate Laundry Room:
    Storage Space:
    Door Phone:
    Double Glazing:
    En Suite Shower:
    Photovoltaic Panels:
    Provision for Split Units:
    Roofgarden:
    Utility Room:
    Veranda Covered:
    Shower:
    Balcony:

    Charalambos Constantinou
    Larnaca Liosion Office
    Apartment, For Sale, Larnaca, New Hospital Area

      By submitting this form, you authorize, ‘FOX Smart Estate Agency’ to contact you and send you information on properties. In addition, you confirm that you agree to our website’s terms of use, our privacy policy and consent to cookies being stored on your computer.

      ARE YOU INTERESTED?

      Enquire about this property

      Complete the form or send an email to [email protected]
      Privacy Overview

      This website uses cookies so that we can provide you with the best user experience possible. Cookie information is stored in your browser and performs functions such as recognising you when you return to our website and helping our team to understand which sections of the website you find most interesting and useful.